Quadrilocale in vendita

Bonate Sopra, Appartamento in Villa Via Caduti di Nassiriya
€ 335.000
4 locali 4 locali
90 Mq 90 Mq
2 bagni 2 bagni

Quadrilocale in vendita

Bonate Sopra, Appartamento in Villa Via Caduti di Nassiriya

Descrizione annuncio

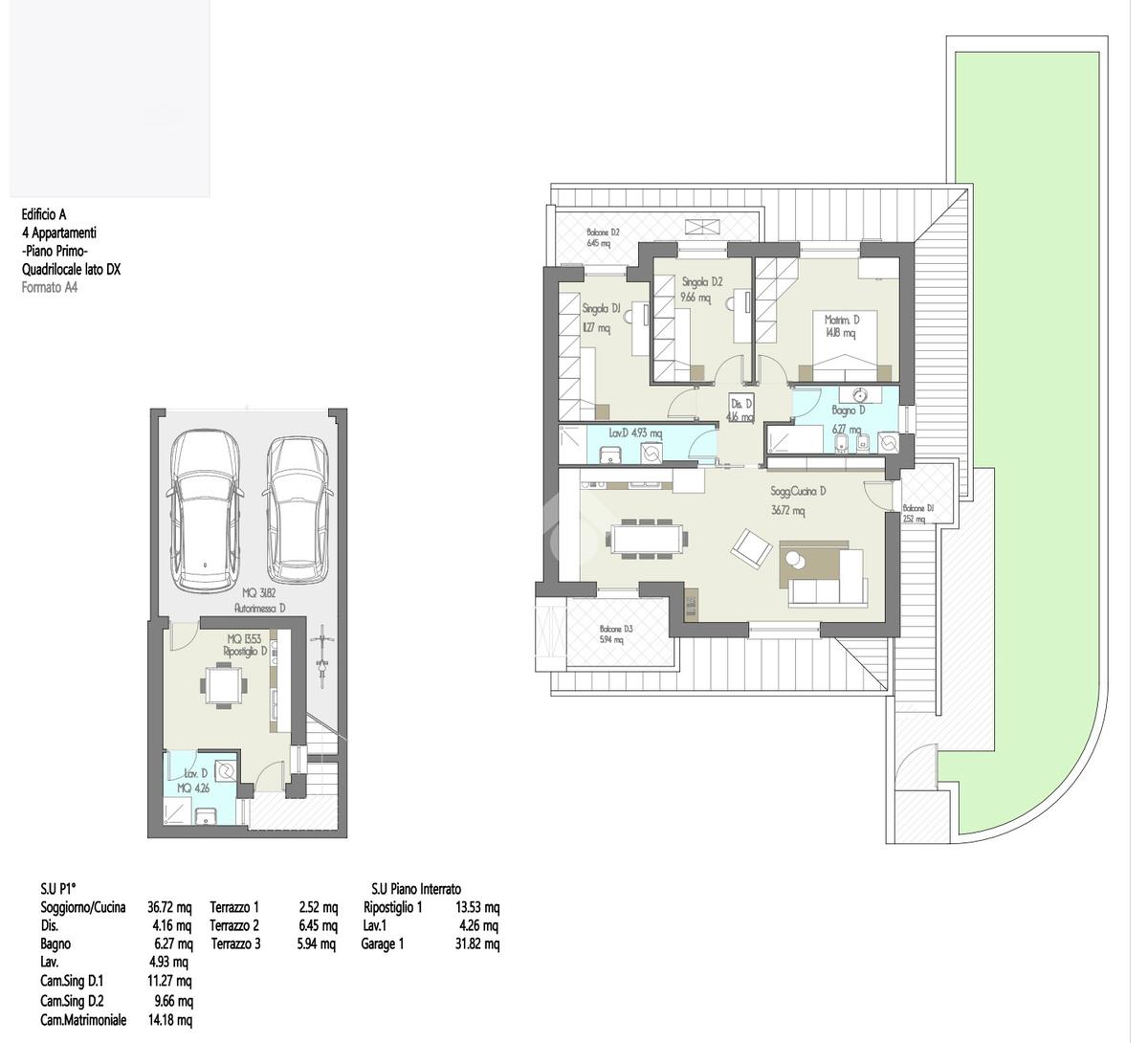
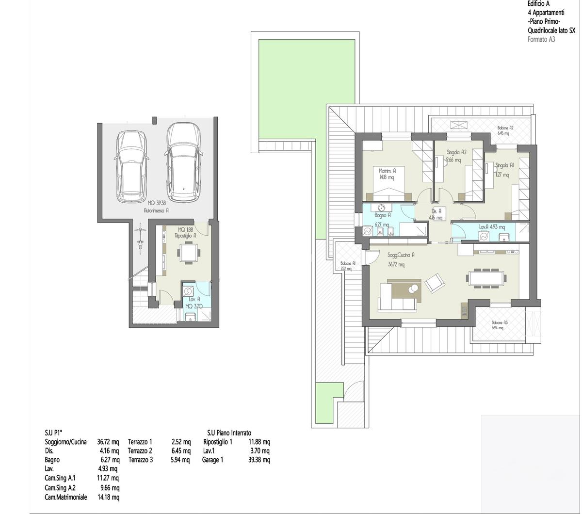
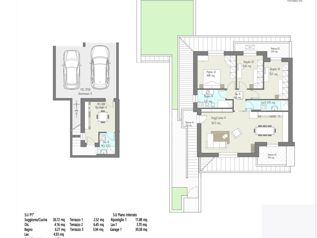
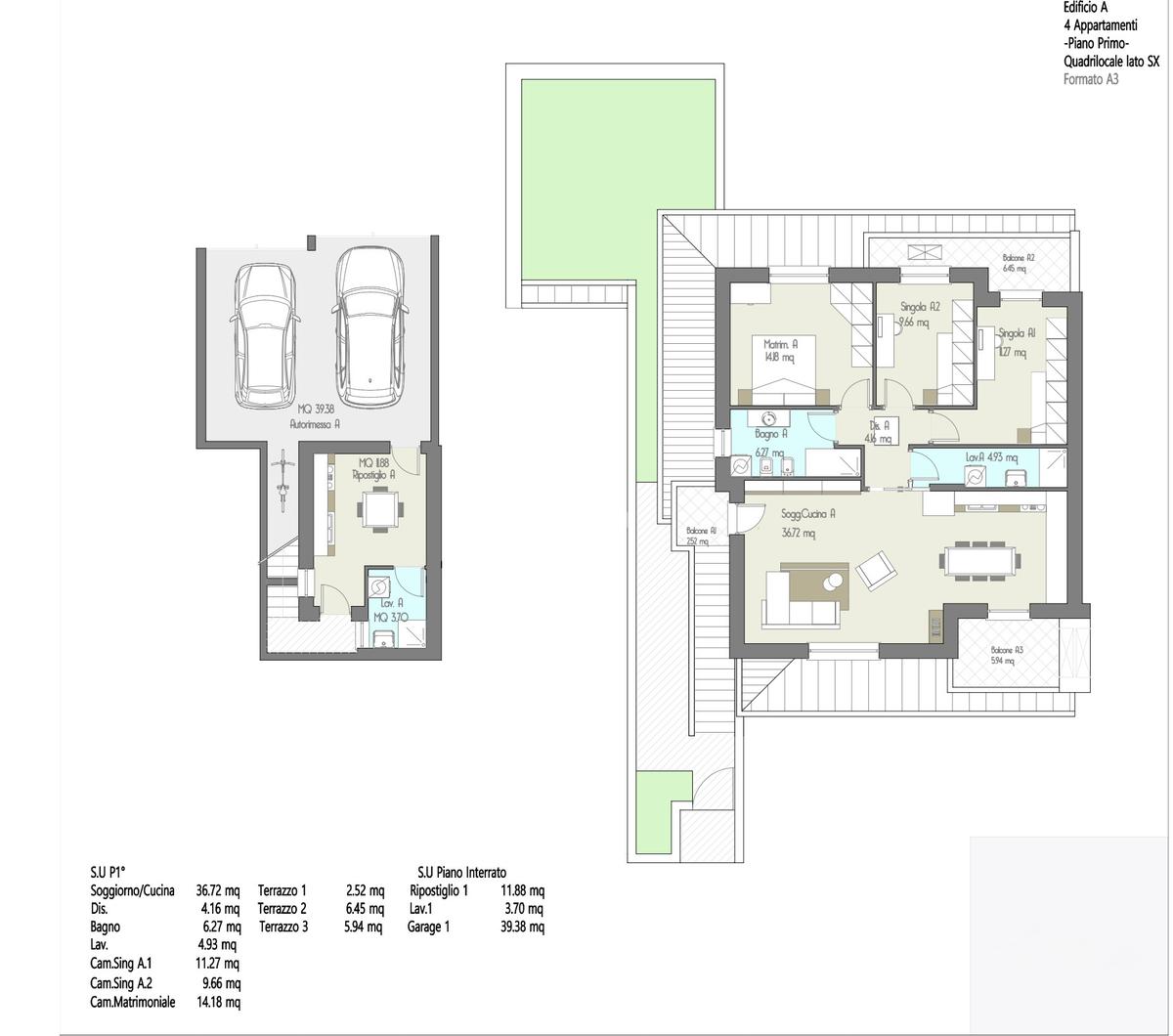
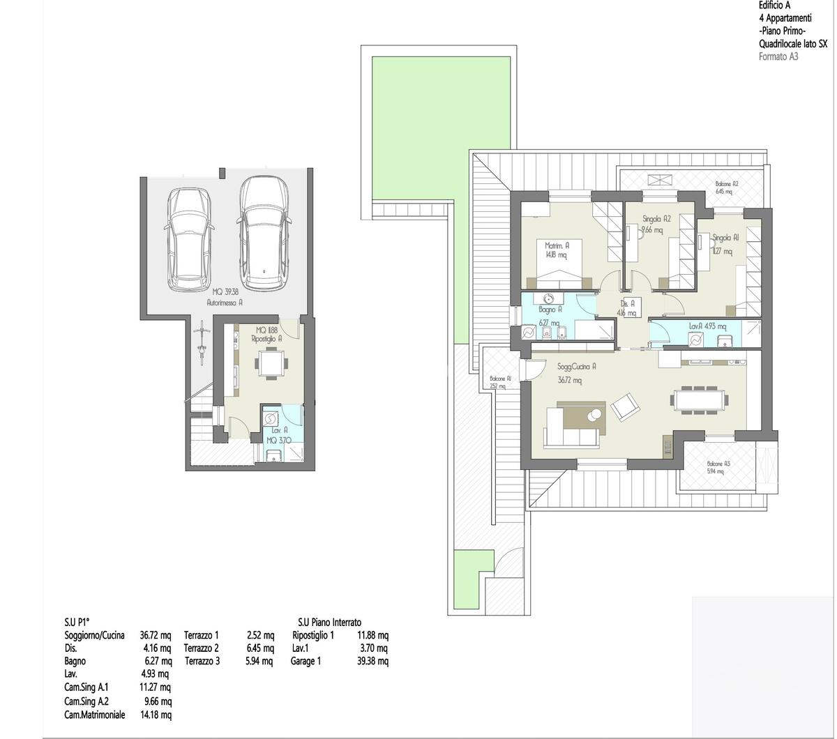
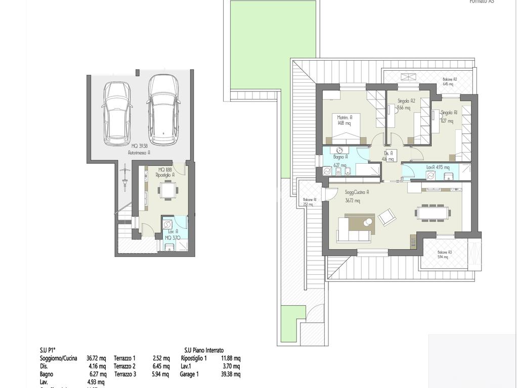
Edificio A. Bonate Sopra, in un elegante contesto residenziale di nuova costruzione, nascono moderni quadrilocali al piano primo e al piano terra, pensati per chi desidera una casa efficiente, luminosa e con tutti gli spazi che servono alla famiglia.

L’abitazione accoglie con un ampio soggiorno con cucina in openspace, ideale per i momenti di relax e per chi ama condividere i pasti in compagnia, tre camere da letto spaziose e un bagno finemente rifinito.

Al piano interrato, trovi un’ampia lavanderia, un pratico ripostiglio e un box doppio: ogni esigenza di spazio trova la sua soluzione.

Dotazioni e comfort di ultima generazione:

Classe energetica A4

Riscaldamento a pavimento per un calore uniforme e naturale

Ventilazione meccanica controllata (VMC) per un’aria sempre pulita e salubre

Impianto fotovoltaico per ridurre i consumi e rispettare l’ambiente

Rivestimento esterno in sasso di Credaro, sinonimo di eleganza e pregio architettonico

La posizione è strategica e tranquilla: in prossimità sia del nuovo complesso scolastico, che dell’asse interurbano e a pochi minuti da Bergamo, perfetta per chi cerca la serenità senza rinunciare alla comodità dei collegamenti e dei servizi.

Una casa che unisce design moderno, efficienza energetica e qualità costruttiva: il luogo ideale dove far crescere la tua famiglia e vivere ogni giorno al meglio.

Mostra tutto

Nelle vicinanze

Trasporto pubblico Trasporto pubblico
Ponte San Pietro
Ponte San Pietro
2,2 Km
Terno
Terno
2,3 Km
821
821
1,8 Km
Capolinea A1
Capolinea A1
1,8 Km
Ricariche auto elettriche Ricariche auto elettriche
Evbility Presezzo
1,2 Km
Iperal Presezzo
1,3 Km
Evbility Ponte San Pietro
1,9 Km
Scuole Scuole
Scuole
1,2 Km
Istituto Tecnico Commerciale "Maironi da Ponte"
1,5 Km
Liceo Scientifico "Maironi da Ponte"
1,5 Km
Scuola Primaria comunale
1,9 Km
Scuola Elementare
2,0 Km
Farmacia Farmacia
Farmacia
870 m
Farmacia Le Ghiaie
1,3 Km
Mauri
2,2 Km
Farmacia Piazzini
2,5 Km
Farmacia Corbellini
2,7 Km
Ospedali Ospedali
Policlinico San Pietro
1,8 Km
Supermercati Supermercati
Iperal
1,3 Km
EuroSpin
1,5 Km
Penny Market
1,8 Km
Unes2
2,4 Km
LD
2,5 Km
Negozi Negozi
MD Market
520 m
U2
1,3 Km
La bottega del campanile
2,1 Km
Negozi
2,5 Km
On the Run
2,9 Km
Bar Bar
bar del bocciodromo
1,2 Km
Cioccolateria Principe Umberto
1,3 Km
Bar Tower
1,5 Km
Bar
1,9 Km
Strabar
2,0 Km
Ristoranti Ristoranti
Ristorante Sandro
1,0 Km
Trattoria Barachì
2,2 Km
Alla Vecchia Fontana
2,4 Km
Sbafo
2,5 Km
Cucina Cereda
2,5 Km
Mostra tutto

Caratteristiche

Rif.:
61121770
Piano:
Su più livelli di 1
Totale piani:
1
Box:
2
Balconi:
1
Camere da letto:
3
Mostra tutto
Prezzo Prezzo
€ 335.000
Rata mutuo Rata mutuo
€ 1.598 / mese
Spese annue Spese annue
€ 0
Proponi il tuo prezzoProponi il tuo prezzo

Classe Energetica

A4
A4
A4
A4
A4
A4
A4
A4
A4
EP globale non rinnovabile:
10.11 kW h/m² anno
EP globale rinnovabile:
8.30 kW h/m² anno
EP invernale del fabbricato:
EP estiva del fabbricato:
Anno di costruzione:
2025
Riscaldamento:
Autonomo
Tipo impianto:
A pavimento
Tipo alimentazione:
Pannelli

Ti interessa visionare l'immobile?

Fissa un appuntamento  Fissa un appuntamento

Richiedi informazioni

Clicca su Leggi per aprire l'informativa
* Questi campi sono obbligatori

Calcola il tuo mutuo

Semplice e senza impegno
Anticipo

( % )
Mutuo

( % )

pochi semplici passi

inserisci i tuoi dati
Questionario completato
Grazie per aver richiesto un appuntamento senza impegno con un nostro Consulente del Credito e Assicurativo.

Hai inserito correttamente tutti i dati necessari e a breve riceverai una e-mail con un link da convalidare per inviare i tuoi dati.
Affiliato
Studio Presezzo Sas
Via Vittorio Veneto, 737 24030 Presezzo (BG)

Il nostro staff


  • Antonio Guida
    Affiliato

  • Patrick Khoury
    Collaboratore

  • Laura Panseri
    Collaboratrice
Via Vittorio Veneto, 737 24030 Presezzo (BG)
Zona: Presezzo - Bonate Sopra
Mostra su mappa
Orari: da lunedì a venerdì: mattina 09 - 12.30 / pomeriggio 15.00 - 19.30; sabato: mattina 9 - 12.30; sabato pomeriggio e domenica: su appuntamento.
Affiliato
Studio Presezzo Sas
Via Vittorio Veneto, 737 24030 Presezzo (BG)

2026 Tecnocasa Franchising S.p.A. - P. IVA 08365160152 - Via Monte Bianco 60/A 20089 Rozzano (MI). Ogni agenzia ha un proprio titolare ed è autonoma. Privacy policy | Policy utilizzo | Cookie policy