Porzione di bifamiliare in vendita

Carvico, Via Passo della Rocca
€ 295.000
144 Mq 144 Mq
2 bagni 2 bagni

Porzione di bifamiliare in vendita

Carvico, Via Passo della Rocca

Descrizione annuncio

Nella zona più esclusiva del comune di Carvico, residenziale, tranquilla e immersa nel verde, proponiamo in vendita una porzione di villa bifamiliare di 144 mq, ideale per chi cerca pace e riservatezza senza rinunciare alla vicinanza ai servizi principali del paese.

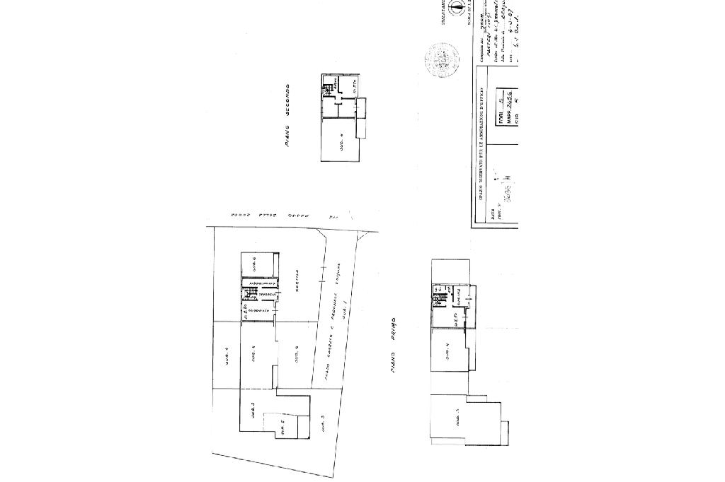
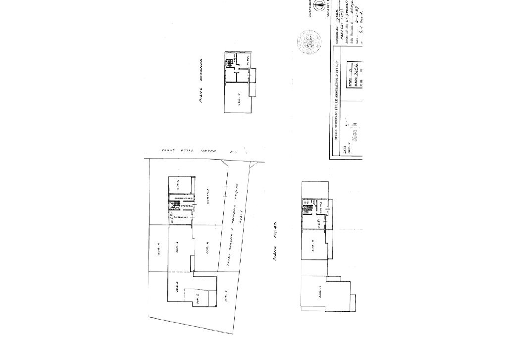
L’immobile, edificato nel 1986, si sviluppa su tre livelli ben distribuiti. Al piano terra troviamo l’ingresso, una spaziosa taverna con cucina attrezzata dotata di stufa a pellet e una pratica lavanderia. Salendo al primo piano si accede alla zona giorno, composta da un soggiorno accogliente con affaccio su un terrazzo, e da una cucina attualmente utilizzata come camera matrimoniale, dotata di impianto di climatizzazione caldo/freddo. Completa il piano un bagno finestrato con doccia.

La zona notte si sviluppa al secondo piano, dove si trovano una camera matrimoniale, due camere singole,di cui una con accesso al terrazzo, e un secondo bagno finestrato con vasca.

Gli ambienti sono ben distribuiti e offrono spazi funzionali, ideali per una famiglia o per chi desidera ambienti aggiuntivi da dedicare a ospiti o a un ufficio domestico.

A completare la proprietà ci sono un box auto e un giardino privato, perfetto per godersi momenti di relax all’aperto o per organizzare pranzi e cene nella bella stagione.

Contattaci per ricevere maggiori informazioni o per fissare una visita!

Quest'immobile è un'ESCLUSIVA di TECNOCASA, contatta l'agenzia per fissare un appuntamento.
Tel. 035.46.42.77

Non lasciatevi scappare questa fantastica opportunità! Contattate subito l'agenzia Tecnocasa di Presezzo per ulteriori informazioni. Visitate la home page e gli immobili sul sito o seguite la pagina Facebook TECNOCASA PRESEZZO.

Mostra tutto

Nelle vicinanze

Trasporto pubblico Trasporto pubblico
Calusco
Calusco
2,7 Km
Trasporto pubblico
1,6 Km
Ricariche auto elettriche Ricariche auto elettriche
Evbility Carvico
770 m
Gran Mercato Calusco d'Adda | EnelX
1,6 Km
Sotto il Monte Fornace | RESSOLAR
1,9 Km
Calusco d'Adda Risorgimento | RESSOLAR
2,0 Km
Scuole Scuole
Scuola Media
580 m
Scuole
1,5 Km
Scuola Elementare paritaria parificata Maria Consolatrice
2,6 Km
Farmacia Farmacia
Farmacia
1,4 Km
Farmacia Dottore Casati
2,3 Km
Supermercati Supermercati
Gran Mercato
1,6 Km
LD Market
1,8 Km
Supermercati
2,6 Km
Negozi Negozi
Jolly Più
1,4 Km
Il Mondo della Frutta
3,0 Km
Bar Bar
Muttley Cafè
650 m
Bar
1,8 Km
La Coda del Gallo
1,8 Km
Flash
1,9 Km
Ristoranti Ristoranti
La Forchetta d'Oro
450 m
Agriturismo Cascina Rigurida
820 m
La Taverna
1,4 Km
Ristorante Ca' Maitino
1,6 Km
Ristorante Pizzeria Del Pesce
1,6 Km
Mostra tutto

Caratteristiche

Rif.:
61117711
Piano:
3 di 3 (Piano su più livelli)
Box:
1
Terrazzi:
2
Camere da letto:
3
Arredamento:
Assente
Mostra tutto
Prezzo Prezzo
€ 295.000
Rata mutuo Rata mutuo
€ 1.407 / mese
Proponi il tuo prezzoProponi il tuo prezzo

Classe Energetica

F
F
F
F
F
F
F
F
F
EP globale rinnovabile:
202.18 kW h/m² anno
EP invernale del fabbricato:
EP estiva del fabbricato:
Anno di costruzione:
1986
Riscaldamento:
Autonomo
Tipo impianto:
A radiatori
Tipo alimentazione:
Metano

Ti interessa visionare l'immobile?

Fissa un appuntamento  Fissa un appuntamento

Richiedi informazioni

Clicca su Leggi per aprire l'informativa
* Questi campi sono obbligatori

Calcola il tuo mutuo

Semplice e senza impegno
Anticipo

( % )
Mutuo

( % )

pochi semplici passi

inserisci i tuoi dati
Questionario completato
Grazie per aver richiesto un appuntamento senza impegno con un nostro Consulente del Credito e Assicurativo.

Hai inserito correttamente tutti i dati necessari e a breve riceverai una e-mail con un link da convalidare per inviare i tuoi dati.
Affiliato
Studio Presezzo Sas
Via Vittorio Veneto, 737 24030 Presezzo (BG)

Il nostro staff


  • Antonio Guida
    Affiliato

  • Patrick Khoury
    Collaboratore

  • Laura Panseri
    Collaboratrice
Via Vittorio Veneto, 737 24030 Presezzo (BG)
Zona: Presezzo - Bonate Sopra
Mostra su mappa
Orari: da lunedì a venerdì: mattina 09 - 12.30 / pomeriggio 15.00 - 19.30; sabato: mattina 9 - 12.30; sabato pomeriggio e domenica: su appuntamento.
Affiliato
Studio Presezzo Sas
Via Vittorio Veneto, 737 24030 Presezzo (BG)

2026 Tecnocasa Franchising S.p.A. - P. IVA 08365160152 - Via Monte Bianco 60/A 20089 Rozzano (MI). Ogni agenzia ha un proprio titolare ed è autonoma. Privacy policy | Policy utilizzo | Cookie policy