Quadrilocale in vendita

Presezzo, Via David
€ 120.000
4 locali 4 locali
110 Mq 110 Mq
1 bagno 1 bagno

Quadrilocale in vendita

Presezzo, Via David

Descrizione annuncio

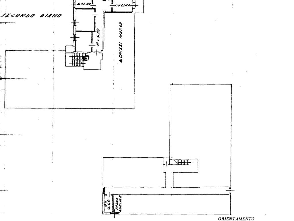
In posizione strategica, a ridosso del centro di Presezzo e a pochi metri dal complesso scolastico e da tutti i principali servizi, proponiamo ampio appartamento posto al secondo piano di una mini palazzina ben tenuta.

La soluzione gode di una favolosa esposizione a Sud, che garantisce luminosità naturale durante tutta la giornata.

L’ingresso si apre su un comodo corridoio in stile anni ’70, che distribuisce gli ambienti in modo funzionale:

Prima camera singola spaziosa;

Camera matrimoniale di generose metrature;

Disimpegno che conduce al bagno dotato di vasca angolare;

Cucina abitabile, con accesso al balcone;

Soggiorno ampio e luminoso, anch’esso collegato al balcone che abbraccia entrambi gli ambienti;

Terza cameretta, ideale come studio o stanza hobby.

Completano la proprietà una cantina al piano seminterrato, un box singolo e un pezzo di orto privato, perfetto per chi ama gli spazi verdi o coltivare i propri prodotti.

Una soluzione ideale per famiglie, in una zona servita e comoda, pronta per essere personalizzata secondo le proprie esigenze.

Quest'immobile è un'ESCLUSIVA di TECNOCASA, contatta l'agenzia per fissare un appuntamento.
Tel. 035.46.42.77

Non lasciatevi scappare questa fantastica opportunità! Contattate subito l'agenzia Tecnocasa di Presezzo per ulteriori informazioni. Visitate la home page e gli immobili sul sito o seguite la pagina Facebook TECNOCASA PRESEZZO.

Mostra tutto

Nelle vicinanze

Trasporto pubblico Trasporto pubblico
Ponte San Pietro
Ponte San Pietro
1,6 Km
Terno
Terno
2,6 Km
821
821
1,1 Km
Capolinea A1
Capolinea A1
1,1 Km
Ricariche auto elettriche Ricariche auto elettriche
Evbility Presezzo
600 m
Iperal Presezzo
740 m
Evbility Ponte San Pietro
1,3 Km
EnelX Polisportiva Brembate
2,8 Km
Scuole Scuole
Istituto Tecnico Commerciale "Maironi da Ponte"
870 m
Liceo Scientifico "Maironi da Ponte"
900 m
Scuole
1,1 Km
Scuola Primaria comunale
1,3 Km
Scuola Elementare
1,4 Km
Farmacia Farmacia
Farmacia
260 m
Farmacia Le Ghiaie
1,1 Km
Mauri
1,6 Km
Farmacia Piazzini
1,9 Km
Farmacia Comunale
3,0 Km
Ospedali Ospedali
Policlinico San Pietro
1,1 Km
Supermercati Supermercati
Iperal
720 m
Penny Market
1,2 Km
Unes2
1,8 Km
EuroSpin
1,8 Km
LD
1,9 Km
Negozi Negozi
MD Market
960 m
Negozi
1,9 Km
U2
1,9 Km
On the Run
2,6 Km
La bottega del campanile
2,7 Km
Bar Bar
bar del bocciodromo
610 m
Cioccolateria Principe Umberto
1,2 Km
Bar
1,5 Km
Via Rampinelli
1,6 Km
Bar Tower
1,8 Km
Ristoranti Ristoranti
Ristorante Sandro
540 m
Sbafo
1,8 Km
Alla Vecchia Fontana
1,9 Km
Cucina Cereda
1,9 Km
Trattoria Barachì
2,0 Km
Mostra tutto

Caratteristiche

Rif.:
61151340
Piano:
2 di 2 (Piano alto)
Box:
1
Balconi:
1
Camere da letto:
3
Arredamento:
Assente
Mostra tutto
Prezzo Prezzo
€ 120.000
Rata mutuo Rata mutuo
€ 572 / mese
Spese annue Spese annue
€ 2.900
Proponi il tuo prezzoProponi il tuo prezzo
Immobile valutato con T·Valuta

Classe Energetica

G
G
G
G
G
G
G
G
G
EP globale non rinnovabile:
264.79 kW h/m² anno
EP globale rinnovabile:
69.04 kW h/m² anno
EP invernale del fabbricato:
EP estiva del fabbricato:
Anno di costruzione:
1972
Riscaldamento:
Centralizzato
Tipo impianto:
A radiatori
Tipo alimentazione:
Metano

Ti interessa visionare l'immobile?

Fissa un appuntamento  Fissa un appuntamento

Richiedi informazioni

Clicca su Leggi per aprire l'informativa
* Questi campi sono obbligatori

Calcola il tuo mutuo

Semplice e senza impegno
Anticipo

( % )
Mutuo

( % )

pochi semplici passi

inserisci i tuoi dati
Questionario completato
Grazie per aver richiesto un appuntamento senza impegno con un nostro Consulente del Credito e Assicurativo.

Hai inserito correttamente tutti i dati necessari e a breve riceverai una e-mail con un link da convalidare per inviare i tuoi dati.
Affiliato
Studio Presezzo Sas
Via Vittorio Veneto, 737 24030 Presezzo (BG)

Il nostro staff


  • Antonio Guida
    Affiliato

  • Patrick Khoury
    Collaboratore

  • Laura Panseri
    Collaboratrice
Via Vittorio Veneto, 737 24030 Presezzo (BG)
Zona: Presezzo - Bonate Sopra
Mostra su mappa
Orari: da lunedì a venerdì: mattina 09 - 12.30 / pomeriggio 15.00 - 19.30; sabato: mattina 9 - 12.30; sabato pomeriggio e domenica: su appuntamento.
Affiliato
Studio Presezzo Sas
Via Vittorio Veneto, 737 24030 Presezzo (BG)

2026 Tecnocasa Franchising S.p.A. - P. IVA 08365160152 - Via Monte Bianco 60/A 20089 Rozzano (MI). Ogni agenzia ha un proprio titolare ed è autonoma. Privacy policy | Policy utilizzo | Cookie policy